For Sale
698,000€
Development potential
Residential

Land for Sale in Nikokleia Village, Paphos – 7265m² with Plans

Key Features

ID: 39788
  • 7,265sqm
  • CategoryLand
  • TypeField
  • AreaNikoklia, Paphos
  • Price per sqm96€
  • Area7,265sqm

Description

The property a residential field with an area of 7265m² (including villa plans & construction license). It benefits from an approved build density of 90%, access to mains electricity, agricultural/domestic water, and a permit to drill a water well. Public roads border three sides of the property, with track access on the fourth, providing multiple entry points.

Located in the charming village of Nikokleia, the land features an established irrigated informal garden with a variety of exotic trees and shrubs, a fruit orchard including citrus, avocado, mango, papaya, and banana, a 60-tree olive grove, and a kitchen garden with garden poultry housing. Additional amenities include a garden room and secure storage adjacent to an extensive hard-standing parking area, with further storage located within the olive grove.

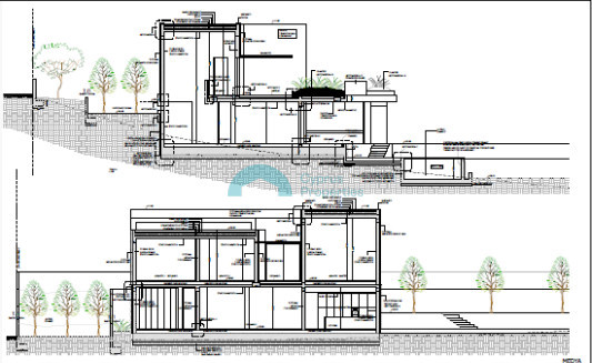
The sale includes plans, architectural drawings, quantity surveys, and a government construction permit for a 4-bedroom villa, guest/staff house, and swimming pool.

This property provides an idyllic rural setting for a family home and offers exciting opportunities for subdivision, multiple homes, or business ventures such as eco-tourism, small-scale specialist horticulture, glamping, boutique hotels, or a health spa.

Nikokleia Village

Nikokleia is situated in the Paphos District of Cyprus, approximately 17 km southeast of Paphos City, at an average elevation of 400 meters on the western bank of the Diarizos River. Surrounded by picturesque natural landscapes, the village is close to the Asprokremmos Dam and the Crusader Village, both west of Nikokleia.

The area is rich in flora and fauna, attracting birdwatchers, herpetologists, botanists, and nature enthusiasts keen to spot species such as the Mediterranean Chameleon, Eleanor’s Falcon, Cyprus Tulip, springtime orchids, and Cyprus Cyclamen.

Nikokleia also offers a glimpse into its historical past, with the 18th-century village church dedicated to Saint Demetrios, an old watermill, a village fountain, and a traditional village square. Essential amenities including a fuel station, café, and mini-market are all less than 5 minutes’ drive from the village.

Allowances

ZoneH2
Build factor90%
Cover factor50%
Max height8.3m
Max floors2
Thank you for your message!

Mortgage Calculator

  • Mortgage ratio
  • Mortgage amount
  • Total interest payable
  • Total amount to be paid
Newsletter
Thank you for your submission!
×